注文住宅のための土地探しと資金計画

前回から引き続き、取材に応じていただいたのは、ワールドハウス旭住宅公園営業所 所長代理の鈴木浩之さん。同じ広さの土地でも建てられる家が違うのはなぜか、土地探しの注意点など、実際の土地探しのポイントをお聞きしました。
──同じ広さでも、土地によって家のプランが変わってくるのは、注文住宅の土地探しが難しい理由の一つかと思います。なぜなのでしょうか。
鈴木:家は基本的に四角形ですので、三角形の土地などではプランニングが難しい。四角形の土地でも、縦長の土地と横長の土地では、土地を有効に使えるかが変わります。道路がどの方角についているのか、車をどこに停めるのかといった点によっても違いが出て来ます。日当たりを重視する方が多いので、土地を上手く使えるのは南側が道路の縦長の土地だと思います。
──なぜ、南側が道路に接した縦長の土地がよいのでしょうか。
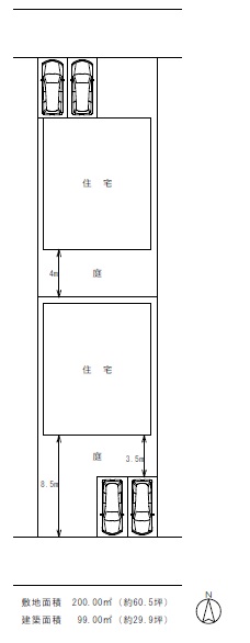
鈴木:北側が道路に接している縦長の土地は、北側の道路に面して駐車場を設けて、南側に庭をとると、庭は道路から見えないのでプライバシーを確保できます。しかし、南側に隣接して家が建つと、庭は日陰になりやすいというデメリットがあります。一方、南側に道路が接している縦長の土地の場合は、北側の奥に家を建てて、南側から駐車場と庭を設けると、家は明るいリビングが確保できます。だから土地は、南道路の土地、その中でも角地から売れて行くんです。

鈴木:東西に長い縦長の土地の場合、南側にスペースがさほどとれず、隣地の家との距離が確保できないため、日当たりは期待しにくいです。
──同じ大きさの土地でも道路の位置によって、住宅のプランは随分変わるのですね。
鈴木:私どもでは土地探しの段階からご相談いただければ、法令によってどのくらい隣地から離さなければならないか、車が何台止められるのか、庭のスペースが何mとれるのか、希望の間取りも踏まえて、実際に土地を見ながら説明します。それによって、たとえば、「狭い」という判断をされるのであれば、また、別の土地を探すという選択肢もとれます。ハウスメーカーに相談しながら土地探しを始めると、その土地にどんな家が建てられるか、イメージして土地を買うことができますよ。